Uniden Grant LT
Documentation Project

CBTricks.com

TIPS:
You need to have Acrobat Reader version 5 or newer installed to view the files with icon.

If the files with or icon will not display see the Site FAQ for help on printing and using this information.


 

ALIGNMENT PROCEDURES
     PLL Alignment
     Transmitter Alignment
     Receiver Alignment

DIAGRAMS
    Block Diagram
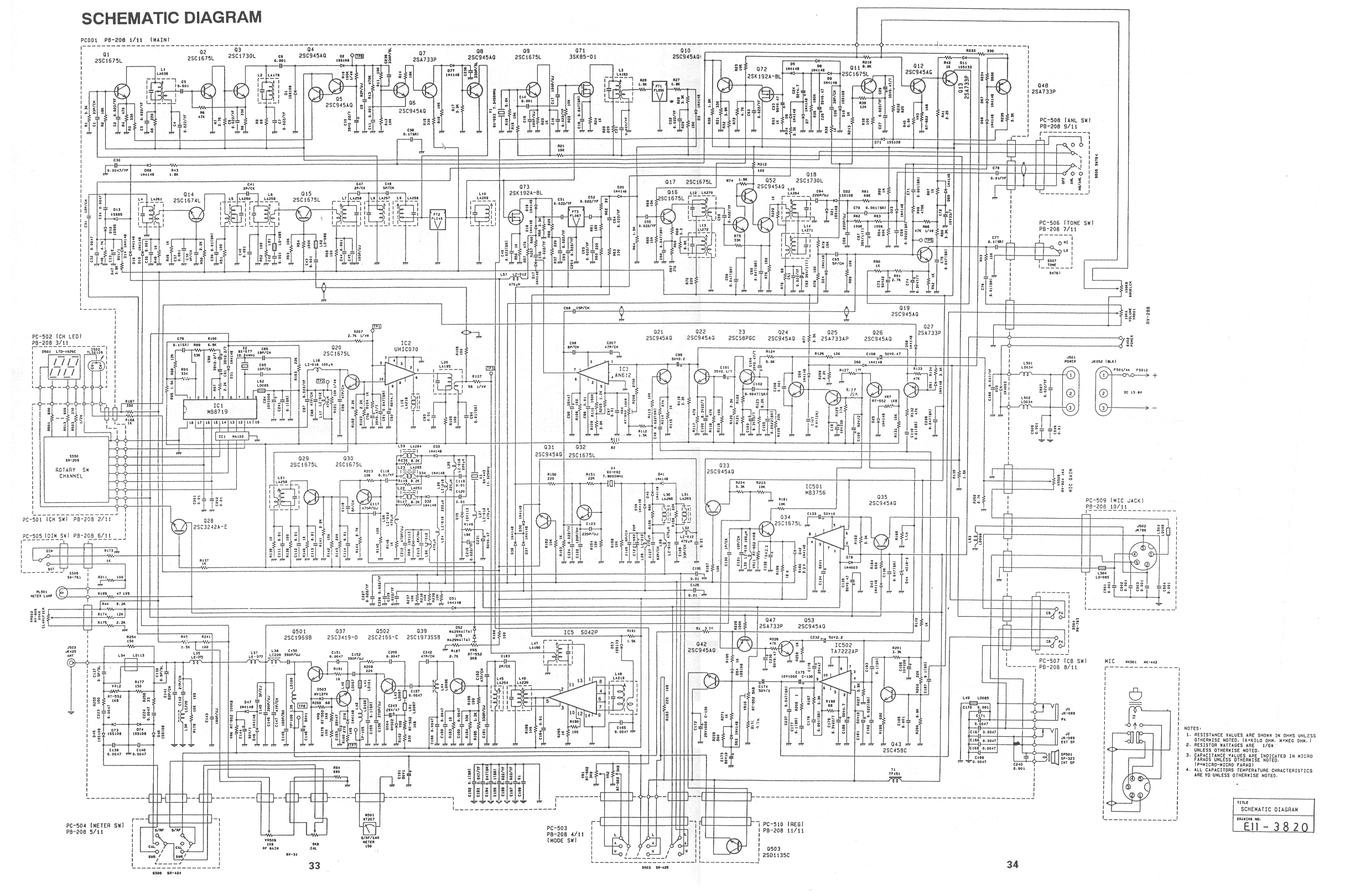
    Grant LT Schematic Diagram
    Board Layout
    Integrated Circuits Internal Diagrams


   Thanks to Allan from the mail list group for helping with this info.                 


     

 




    

 

 

 


Copyright © 1998,1999,2000,2002 CBTricks.com

Disclaimer: Although the greatest care has been taken while compiling these documents,

we cannot guarantee that the instructions will work on every radio presented.